25+ Mẫu biệt thự mái Nhật 1 tầng đẹp ở Việt Nam (bản vẽ thiết kế)
- 07-01-2026
- Lượt xem: 95
Nội dung chính
Không cầu kỳ như kiến trúc cổ điển, cũng không quá cứng nhắc như nhà phố hiện đại, biệt thự mái Nhật 1 tầng là sự kết hợp hoàn hảo giữa nét đẹp thanh lịch của văn hóa xứ Phù Tang và lối sống tiện nghi, hiện đại của gia đình Việt. Với hệ mái dốc nhẹ đặc trưng cùng không gian mở tối đa, mẫu nhà này không chỉ mang đến diện mạo sang trọng, bình yên mà còn đảm bảo công năng sử dụng tối ưu trên một mặt sàn. Thiết kế tinh giản nhưng tinh tế, mỗi chi tiết từ cửa sổ, hiên nhà đến tiểu cảnh sân vườn đều được cân nhắc kỹ lưỡng để tổ ấm đón trọn nắng và gió tự nhiên, mang lại cảm giác thư thái, bình yên cho mọi thành viên trong gia đình.
Đặc trưng biệt thự mái Nhật 1 tầng
-
Hệ mái Nhật có đặc điểm là độ dốc thấp (thường 25 - 35 độ), các cạnh mái đua rộng ra khỏi tường, không chỉ tạo nên diện mạo thanh thoát mà còn có tác dụng bảo vệ tường nhà khỏi mưa nắng, đồng thời tạo ra hệ thống thoát nước tự nhiên tỏa đều ra các hướng.
-
Cấu trúc mái chồng mái tạo chiều sâu giúp ngôi nhà dù sở hữu cấu trúc 1 tầng nhưng vẫn mang lại cảm giác bề thế, phá vỡ sự đơn điệu của các bức tường phẳng, đồng thời tạo điểm nhấn tinh tế, cân bằng giữa hình khối và tỷ lệ tổng thể.
-
Với quỹ đất lý tưởng từ 200 - 300m2, nhà 1 tầng mái Nhật phát huy tối đa đặc trưng kiến trúc trải ngang và sự cân bằng tuyệt đối trong hình khối. Điểm nhấn nằm ở sơ đồ công năng 'phẳng' với hệ thống phòng khách – ăn – bếp liên thông, xóa nhòa mọi ngăn cách để tạo ra một không gian sống thênh thang, tràn ngập ánh sáng. Đặc biệt, việc bố trí các phòng ngủ xung quanh trục trung tâm, tiếp giáp trực tiếp với mặt thoáng thông qua hệ cửa kính lớn và hiên nhà rộng không chỉ giúp đón trọn hơi thở thiên nhiên mà còn tạo ra tầm nhìn 360° hướng sân vườn.
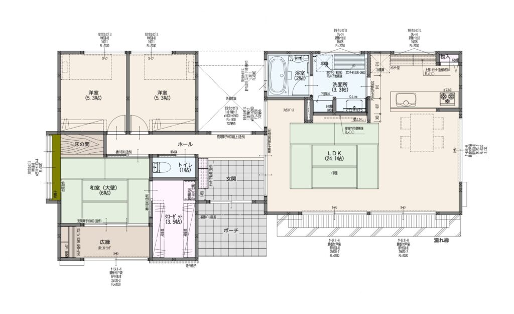
Bản vẽ thiết kế biệt thự mái Nhật 1 tầng
Bản vẽ biệt thự mái Nhật 1 tầng cung cấp cái nhìn tổng thể về cách bố trí các khu vực chức năng. Qua đó, gia chủ dễ dàng hình dung tỷ lệ, kích thước và sự kết nối giữa các không gian, đảm bảo ánh sáng và gió tự nhiên được tối ưu hóa trong từng căn phòng. Đồng thời, bản vẽ là công cụ quan trọng để đội ngũ thi công kiểm soát chính xác kỹ thuật, hạn chế sai sót, tối ưu ngân sách và đảm bảo công trình hoàn thiện đúng với tinh thần thiết kế ban đầu.
25+ Các mẫu biệt thự mái Nhật 1 tầng đẹp, tiện nghi, hiện đại
Mẫu biệt thự mái Nhật 1 tầng Tân cổ điển
Kiến trúc biệt thự mái Nhật 1 tầng tân cổ điển là một bài toán hóc búa về nghệ thuật cân bằng tỷ lệ, nơi người kiến trúc sư phải hóa giải sự xung đột giữa tính “dàn ngang” của hệ mái Nhật và tính “vươn đứng” của phong cách châu Âu. Với quy mô đất lý tưởng từ 400m2 trở lên, ưu tiên 4 mặt thoáng, công trình mới thực sự có không gian để “thở”, tránh rủi ro nặng đầu, lùn thân khi áp dụng ngôn ngữ tân cổ điển trên một cấu trúc thấp.
Toàn bộ không gian được dàn trải trên một mặt bằng duy nhất theo trục trung tâm rõ ràng với sảnh chính dẫn thẳng vào phòng khách trung tâm – không gian có cao độ và tỷ lệ lớn nhất, đóng vai trò lõi sinh hoạt và trục định hướng thị giác. Phòng bếp – ăn được bố trí lùi về phía sau hoặc lệch trục, kết nối trực tiếp với hiên và sân vườn nhằm giảm cảm giác “bẹt” của nhà 1 tầng. Các phòng ngủ phân bổ đều sang hai bên trục chính, tiếp cận trực tiếp ánh sáng và thông gió tự nhiên, đảm bảo sự riêng tư mà không tách rời sinh hoạt chung.
Mẫu biệt thự sân vườn mái Nhật 1 tầng
Giữa nhịp sống hối hả, mẫu biệt thự sân vườn mái Nhật 1 tầng hiện lên như một nốt trầm mặc đầy tinh tế, nơi kiến trúc không còn là những khối bê tông vô hồn mà trở thành một thực thể sống hòa quyện cùng hơi thở của thiên nhiên. Trên quỹ đất rộng hơn 300m2, công trình không chỉ đơn thuần đáp ứng nhu cầu ở, mà là một giải pháp kiến trúc ưu việt trong việc điều phối vi khí hậu. Với hình khối chữ L hoặc U ôm lấy khoảng sân trung tâm, ngôi nhà thiết lập một "lõi sống" liền mạch giữa khách – ăn – bếp, mở tầm nhìn tuyệt đối ra vườn cảnh. Hệ mái Nhật với độ đua rộng và hiên sâu từ 2–3m đóng vai trò là "vùng đệm" hoàn hảo, giúp thông gió chéo và giảm bức xạ nhiệt trực tiếp, đặc biệt phù hợp với đặc thù nắng mưa tại Việt Nam. Sự phân bổ 2–3 phòng ngủ bao quanh lõi sống đảm bảo mọi không gian đều có cửa sổ lớn hướng vườn, biến ngôi nhà thành một "mini resort" thực thụ, nơi hiên nhà trở thành không gian sinh hoạt thứ tư kết nối con người với thiên nhiên.
Mẫu biệt thự mái Nhật 1 tầng đẹp ở nông thôn
Mẫu biệt thự mái Nhật 1 tầng ở nông thôn chọn cách nép mình khiêm cung trên mảnh đất làng quê yên bình, vươn mình theo phương ngang để ôm trọn lấy luồng sinh khí tinh khôi của đất trời. Trên quỹ đất từ 250m2 - 400m2, công trình được tổ chức với chân đế nâng cao vừa phải nhằm hạn chế ẩm và ngập cục bộ, kết hợp hệ mái Nhật dốc nhẹ, sử dụng khung kèo thép mạ hoặc bê tông cốt thép liền khối, ngói hoặc tấm lợp có khóa liên kết, đảm bảo độ ổn định lâu dài trước tác động thời tiết.
Không gian sinh hoạt được xoay quanh trục phòng khách – hiên trước rộng, nơi đóng vai trò như một “phòng sinh hoạt ngoài trời” đúng với thói quen sống nông thôn. Khu bếp được tách nhẹ để kiểm soát mùi và nhiệt, trong khi các không gian phụ như kho, khu giặt phơi được quy hoạch rõ ràng ngay từ đầu nhằm giữ cho tổng thể luôn gọn gàng. Với hình khối đơn giản, vật liệu phổ thông nhưng chắc chắn, mẫu nhà này đạt được sự cân bằng giữa dễ thi công – dễ bảo trì – chịu thời tiết tốt, mang lại cảm giác vững chãi, an tâm và bền bỉ theo thời gian cho gia chủ.
Mẫu biệt thự mái Nhật 1 tầng Tân cổ điển 3 phòng ngủ
Lấy cảm hứng từ những cung điện thu nhỏ nằm giữa khu vườn thơ mộng, biệt thự mái Nhật 1 tầng Tân cổ điển toát lên vẻ thanh thoát, cân bằng và tinh giản, với hệ mái thấp, hiên rộng và các thức cột mảnh, kết hợp tỷ lệ hài hòa theo trục đối xứng đặc trưng.
Trên quỹ đất khoảng 300 - 500m2, không gian trung tâm được xác lập qua trục sảnh chính với phòng khách, phòng bếp - ăn thiết kế liên thông, mở thẳng ra hiên và tiểu cảnh phía sau, tạo dòng chảy thị giác xuyên suốt.
-
Phòng ngủ master đặt phía sau, hướng ra vườn, đi kèm WC riêng, đảm bảo riêng tư và tầm nhìn thoáng.
-
Hai phòng ngủ phụ bố trí cân đối hai bên trục trung tâm với một phòng gần sảnh phụ phía trước, thuận tiện cho khách hoặc người lớn tuổi, phòng còn lại được bố trí phía sau yên tĩnh, gần WC chung cho các thành viên khác.
Mẫu biệt thự mái Nhật 1 tầng 2 phòng ngủ
Với diện tích khoảng từ 250m2, mẫu biệt thự mái Nhật 2 phòng ngủ này như một ốc đảo tĩnh tại dành riêng cho những cặp vợ chồng trẻ hoặc gia chủ độ tuổi nghỉ hưu. Ngôn ngữ kiến trúc đề cao sự giao thoa giữa con người và thiên nhiên thông qua hệ hiên rộng và những mảng kính lớn kịch trần. Trục sảnh chính của ngôi nhà được bố trí xuyên suốt, kết nối từ cửa chính vào phòng khách, tiếp đến khu vực bếp – ăn liên thông, đồng thời mở ra hiên và tiểu cảnh phía sau, tạo dòng chảy thị giác liền mạch và khoáng đạt.
-
Phòng ngủ Master được đặt khéo léo ở vị trí khuất trục sảnh chính, lệch một bên trục trung tâm hoặc cách chữ L nhẹ, mở ra một khoảng vườn riêng tư để gia chủ có thể chạm tay vào sắc xanh ngay khi thức dậy.
-
Phòng ngủ phụ được bố trí cùng cánh với phòng Master nhưng lệch một bên trục trung tâm hoặc kề bếp đảm bảo yên tĩnh, đồng thời vẫn kết nối trực tiếp với khoảng sân nhỏ bên hông, giúp không gian luôn ngập tràn ánh sáng và gió tự nhiên.
Mẫu biệt thự mái Nhật 1 tầng diện tích 100m2
Mẫu biệt thự mái Nhật 1 tầng diện tích 100m2 là sự kết hợp hoàn hảo giữa nét đẹp hiện đại và không gian sống tối ưu, đặc biệt phù hợp cho các gia đình từ 3 - 4 thành viên. Đối với diện tích 100m2, không gian thường được thiết kế theo lối mở với phòng khách và phòng bếp liên thông, giúp tận dụng tối đa diện tích và tạo cảm giác thông thoáng vượt trội so với các kiểu nhà truyền thống. Đồng thời, dễ dàng bố trí khoảng 2 - 3 phòng ngủ cùng một phòng thờ trang trọng mà vẫn đảm bảo được sự riêng tư cần thiết.
Điểm khác biệt của biệt thự mái Nhật 1 tầng nằm ở "sự tĩnh tại trong hình khối" và tư duy thẩm mỹ đề cao tính cân bằng theo phương ngang. Thay vì cố gắng tạo điểm nhấn bằng chiều cao hay những chi tiết trang trí cầu kỳ, kiến trúc này chinh phục người nhìn bởi bởi vẻ đẹp điềm đạm, thanh lịch và hài hòa trong từng đường nét. Từ sự khác biệt trong tư duy thẩm mỹ đó, biệt thự mái Nhật 1 tầng hình thành nên những đặc trưng kỹ thuật và mỹ thuật riêng biệt.
Có những vẻ đẹp không phai nhòa theo năm tháng, mà càng trở nên sâu sắc hơn cùng thời gian. Decox tin rằng, một không gian sống lý tưởng là một di sản tinh thần bền bỉ. Chúng tôi tôn trọng những giá trị cốt lõi, đan cài chúng vào nhịp thở hiện đại để tạo nên một tổng thể vừa tinh tế, vừa giàu tính kế thừa. Hãy cùng Decox xây dựng một ngôi nhà trường tồn.























































